Modern green multi-story residential building on a hill with stairs, trees, and landscaping

PERISCOPE


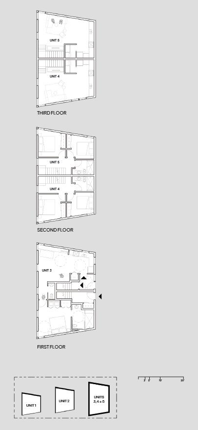
TYPE: MULTI-FAMILY, RESIDENTIAL

PERISCOPE is a flexible housing concept for Gibsons, shaped by steep terrain, mountain views, and the changing needs of families.

Made up of three simple volumes, the design works across different lot types while protecting views toward Howe Sound. It includes a mix of homes, such as lock-off suites and optional backyard units, making space for rentals, extended family, or changing life stages.

From the street, the building fits in with the scale of nearby single-family homes. Landscaped paths, shared yards, and permeable surfaces help build community and respond to the local climate.

PERISCOPE is a quiet example of thoughtful growth, focusing on comfort, privacy, and long-term adaptability.

Modern green multi-story apartment buildings situated on a sloped street with trees and parked cars.

MORE PROJECTS

MOUNTAIN. VALLEY. TERRACE.

VIEW PROJECT →