A residential street with a modern building featuring green cylindrical balconies decorated with plants, alongside a tree-lined sidewalk where people are walking and sitting.

MOUNTAIN. VALLEY. TERRACE.


TYPE: MULTI-FAMILY, RESIDENTIAL

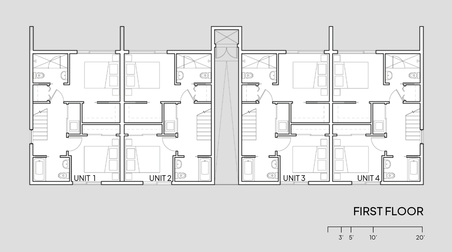
Mountain. Valley. Terrace. is a six-home infill project shaped by Vancouver’s new small-scale multi-unit housing rules. Two identical building forms, designed to rotate, allow the layout to adapt to the site, resulting in mountain, valley, or terrace configurations.

Each home has its own street entrance, with private patios connected to every living space and bedroom, along with a rooftop planter that collects rainwater. A shared elevator provides access to the upper homes and a communal rooftop garden.

The design encourages connection to the street, to nature, and among neighbours, while making the most of light, outdoor space, and sustainable water use on a compact lot.

Modern multi-story building with green cylindrical balconies filled with plants, stairs leading to entrances, and people walking and cycling in front, surrounded by trees and a cloudy sky.

MORE PROJECTS

BLOCK PARTY

VIEW PROJECT

HOLLOW HOUSE

VIEW PROJECT