TWO BY THREE


TYPE: MULTI-FAMILY, RESIDENTIAL

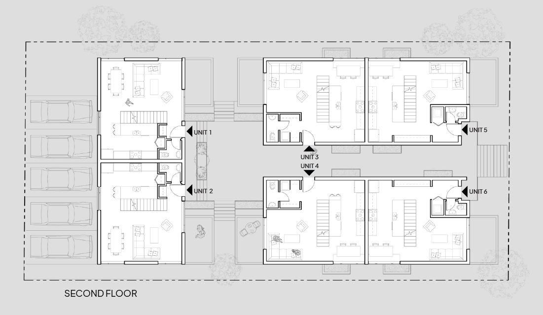
Two by Three is a six-home project made up of three compact duplexes, arranged to give each unit more privacy while staying connected through a shared raised walkway.

This central path acts as both entrance and meeting place, encouraging casual neighbourly interaction. Rooftop patios include privacy screens that complete the shed roofs into gable forms, weaving outdoor space into the architecture. Inside, flexible ground floors allow room for a guest suite, studio, or home office. With its simple shapes and thoughtful layout,

Two by Three offers a quiet mix of connection and independence that supports a variety of living needs.

MORE PROJECTS

LASALLE COLLEGE

VIEW PROJECT →

KING FISHER CABIN

VIEW PROJECT →

GEORGIA ST. VIADUCTS

VIEW PROJECT →