Modern multi-story residential building with beige and dark gray exterior, surrounded by trees and greenery, with people and a cyclist in the foreground.

BLOCK PARTY


TYPE: MULTI-FAMILY, RESIDENTIAL

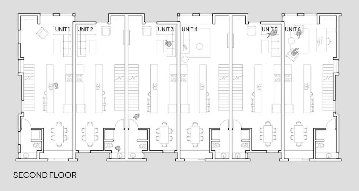
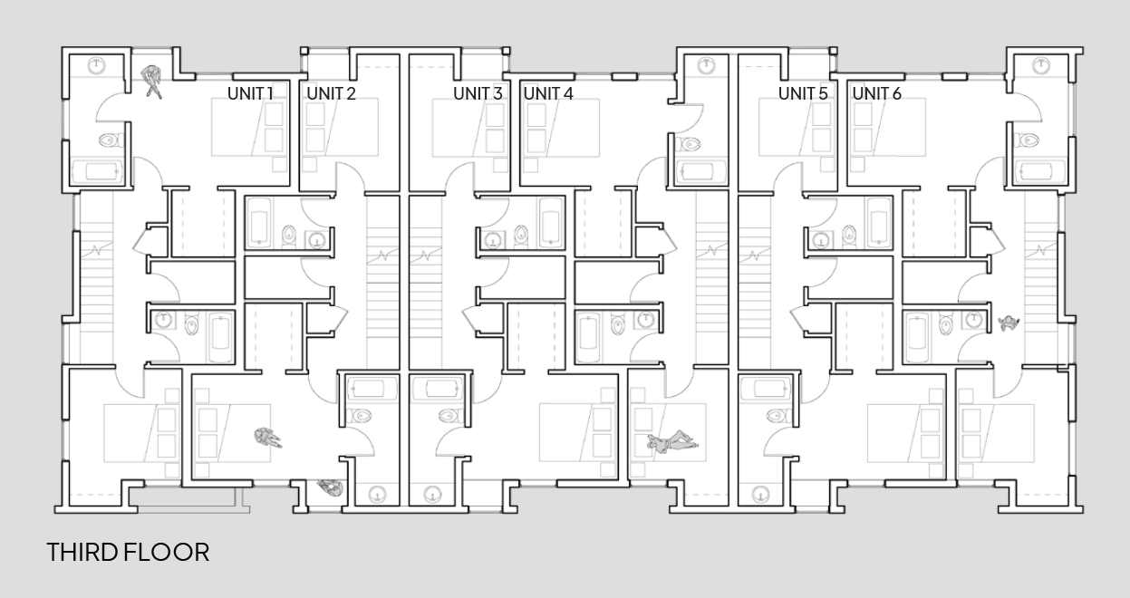
Block Party is a six-unit multiplex shaped by Burnaby’s new zoning rules, which limit site coverage but allow more flexibility in floor area.

To make the most of this, the design uses tall bay windows that rise from the second floor to the rooftop, adding space, daylight, and a lively rhythm to the facade. Inside, each ground floor is left open and adaptable, offering room for a studio, office, or suite for extended family.

These spaces are designed to grow and shift with the people who live in them. Block Party explores how compact housing can be both flexible and full of character, meeting the needs of modern urban living.

Modern multi-story apartment building with geometric design, large windows, and green landscaping, depicted during daytime with a partly cloudy sky.
Modern multi-story apartment building with geometric beige facade and large windows, surrounded by greenery under a clear sky.

MORE PROJECTS

HOLLOW HOUSE

VIEW PROJECT →

MOUNTAIN. VALLEY. TERRACE.

VIEW PROJECT →